
電力安裝施工服務概述
哈哈體育專業從事110KV及以下送變電安裝工程、電力設備安裝、變電站建設等業務,完全具備從設計、安裝、施工、試驗、檢測、維修直到交鑰匙的業務全過程的電力安裝工程總承包能力。 現已獲得建委頒發的送變電工程三級專業承包資質,承裝、承修、承試類三級。與此同時,公司自主生產的高低壓電氣成套設備是送變電安裝工程中必須用到的香港開關設備,采用自主生產的設備,能降低工程成本,增強競爭能力,創造品牌影響力。
電力施工服務承諾
哈哈體育建立了一支強大的技術支持與服務的專業隊伍,為客戶提供多方面的優質服務,幫助客戶正確地選擇和使用產品,及時地為客戶排除使用中產生的故障。同時,通過廣泛收集售后服務中各種問題、意見和要求信息,不斷改進和提高我們的設計、制造和服務等工作質量,為客戶更好地提供優質的產品和完善的服務。公司承諾,合同簽定后,負責協調產品在工程全過程的各項工作并提供技術服務,如工程進度、設計制造、圖紙文件、制造確認、包裝運輸、現場安裝、調試驗收、維修代理服務等。
安裝服務措施
■ 公司提供設計、安裝、調試、檢測、技術培訓 ,專業替用戶從供電方案的確定、電氣圖紙的 設計、電氣設備的安裝和相關部門送電手續的辦理及送電等系統工程(即交鑰匙工程)。
■ 在需方供電方案尚未確定時,公司派出多名高級技術工程師會同用電所對整個工程進行全面考察,以確定最佳的供電方案。
■ 供電方案確定后,公司派出專職設計人員與需方專職總工程師進行充分協商,以按需方的要求設計出合理的電氣圖紙。
■ 設備在生產過程中,為保證產品質量,公司盡可能與需方技術員溝通,并隨時歡迎需方代表到我公司生產現場查看設備生產情況。
■ 設備到達工地時,公司將派出專職技術安裝人員進行現場安裝,配合需方技術人員對設備外觀及數量進行現場檢驗和驗收。
■ 在需方許可的情況下,公司將會同設備廠家派出的專職技術服務人員,對需方的技術人員、設備操作和維護人員進行免費培訓。
■ 系統維護:采取定期維護計劃,對不定期維護或設計修改要求立即響應。
■ 技術支持:提供24小時的技術咨詢服務,對重大故障提供24小時的現場支援,一般故障提供日常工作8小時時限內的現場支援,并提供系統所需更換的任何備件。
電纜橋架施工工藝
1、電纜橋架安裝工藝流程:
根據施工圖確定始端到終端位置,沿圖紙標定走向,找好水平、垂直、彎通,用粉線袋或畫線沿橋架走向在墻壁、頂棚、地面、梁、板、柱等處彈線或畫線,并均勻檔距畫出支、吊、托架位置。
2、預埋鐵件或膨脹螺栓
(1)、預埋鐵件的自制加工不應小于120mm×80mm×6mm,做法如本標準6.3.7.2圖6.3.7.2。其錨固圓鋼的直徑不小于10mm。
(2)、緊密配合土建結構的施工,將預埋鐵件平面緊貼模板,將錨固圓鋼用綁扎或焊接的方法固定在結構內的鋼筋上;待混凝土模板拆除后,預埋鐵件平面外露,將支架、吊架或托架焊接在上面進行固定。
(3)、 根據支架承受的荷重,選擇相應的膨脹螺栓及鉆頭;埋好螺栓后,可用螺母配上相應的墊圈將支架或吊架直接固定在金屬膨脹螺栓上,可參見本標準6.3.7.7圖表。
3、支、吊架安裝
(1) 、支架與吊架所用鋼材應平直,無顯著扭曲。下料后長短偏差應在3mm范圍內,切口處應無卷邊、毛刺。
(2)、 鋼支架與吊架應焊接牢固,無顯著變形,焊接前厚度超過4mm的支架、鐵件應打坡口,焊縫均勻平整,焊縫長度應符合要求,不得出現裂紋、咬邊、氣孔、凹陷、漏焊等缺陷。
(3)、支架與吊架應安裝牢固,保證橫平豎直,在有坡度的建筑物上安裝支架與吊架應與建筑物的坡度、角度一致。
(4)、支架與吊架的規格一般不應小于扁鋼30mm×3mm;角鋼25mm×25mm×3mm。
(5)、嚴禁用電氣焊切割鋼結構或輕鋼龍骨任何部位。
(6)、萬能吊具應采用定型產品,并應有各自獨立的吊裝卡具或支撐系統。
(7)、固定支點間距一般不應大于1.5~2m。在進出接線盒、箱、柜、轉角、轉彎和變形縫兩端及丁字接頭的三端500mm以內應設固定支持點。
(8)、嚴禁用木磚固定支架與吊架。
4、橋架安裝
(1)、電纜橋架水平敷設時,支撐跨距一般為1.5~3m,電纜橋架垂直敷設時固定點間距不宜大于2m。橋架彎通彎曲半徑不大于300mm時,應在距彎曲段與直線段結合處300~600mm的直線段側設置一個支、吊架。當彎曲半徑大于300mm時,還應在彎通中部增設一個支、吊架。支、吊架和橋架安裝必須考慮電纜敷設彎曲半徑滿足規范最小彎曲半徑。見表12.3.1.5。

表1 電纜最小允許彎曲半徑
(2)、門型角鋼支架的安裝:梯型橋架沿墻垂直敷設,可使用門型角鋼支架,支架的固定應盡可能配合土建施工預埋。如圖2,也可在土建施工中預埋開角螺栓,用開角螺栓固定支架如圖3,也可以采用膨脹螺栓固定。

圖2

圖3鋼支架預埋地腳螺栓安裝

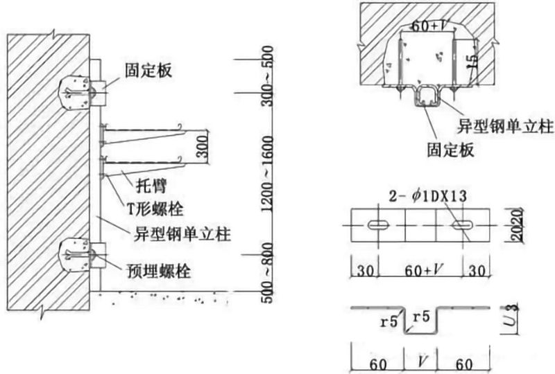
(3)、梯型角鋼支架的安裝:橋架沿墻、柱水平安裝時,托壁需安裝在異型鋼立柱上,而立柱要安裝在梯型角鋼支架上,使柱和墻上的橋架固定支架(或托臂)在同一條直線上。制作見圖和表4底架與門型架焊接時,焊角高度5mm。

圖4 梯型角鋼支架制作圖
表 12.3.1.5(3)梯型角鋼支架制作尺寸表(mm)
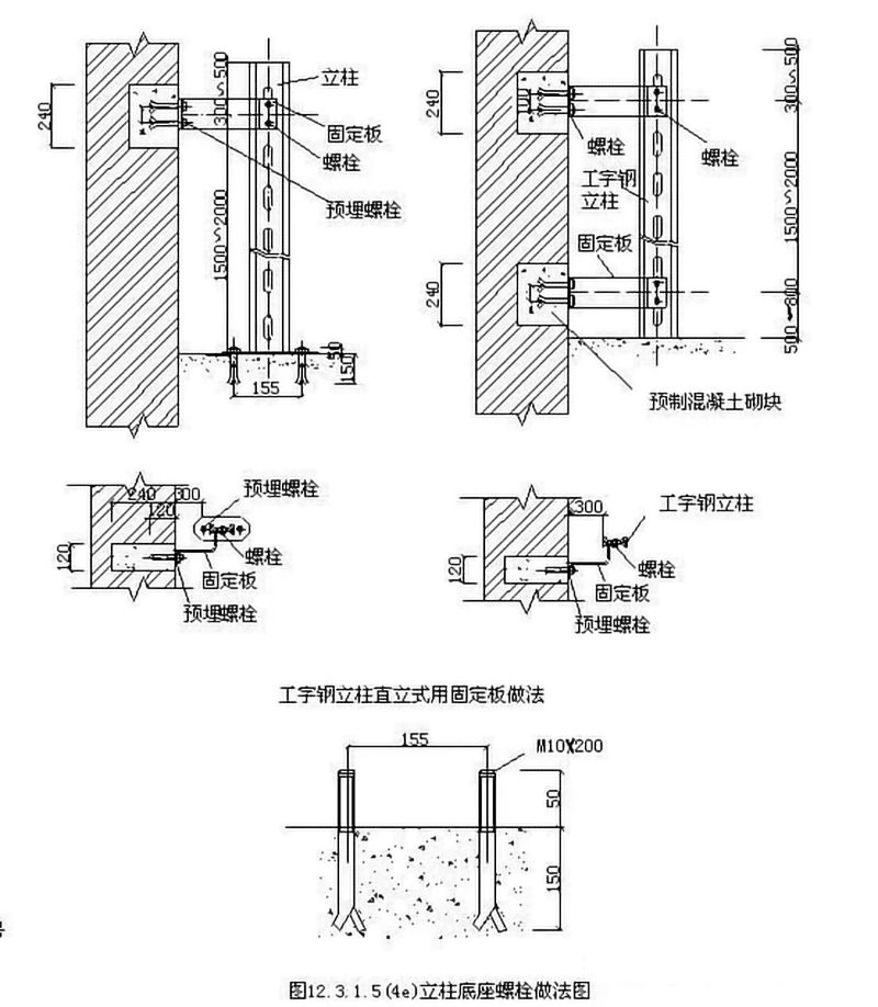
(4)、電纜橋架立柱側壁式安裝:立柱是直接支承托臂的部件,分工字鋼槽鋼、角鋼、異型鋼立柱;立柱可以在墻上、柱上安裝、也可懸吊在梁板上安裝。做法在混凝土可預埋鐵件;砌體可砌筑預制砌塊;也可以采用膨脹螺栓但必須在混凝土強度C20或磚強度在MU10以上的磚砌體上,作法可參照12.3.1.5(4a、b、c、d、e、f)。



圖12.3.1.5(4c)異型鋼立柱在墻上側壁安裝作法之一



(5)、電纜橋架應敷設在易燃易爆氣體管和熱力管道的下方,當設計無要求時,與管道的最小凈距,符合12.3.1.5(5)的規定。

表示12.3.1.5 (5)與管道的最小凈距
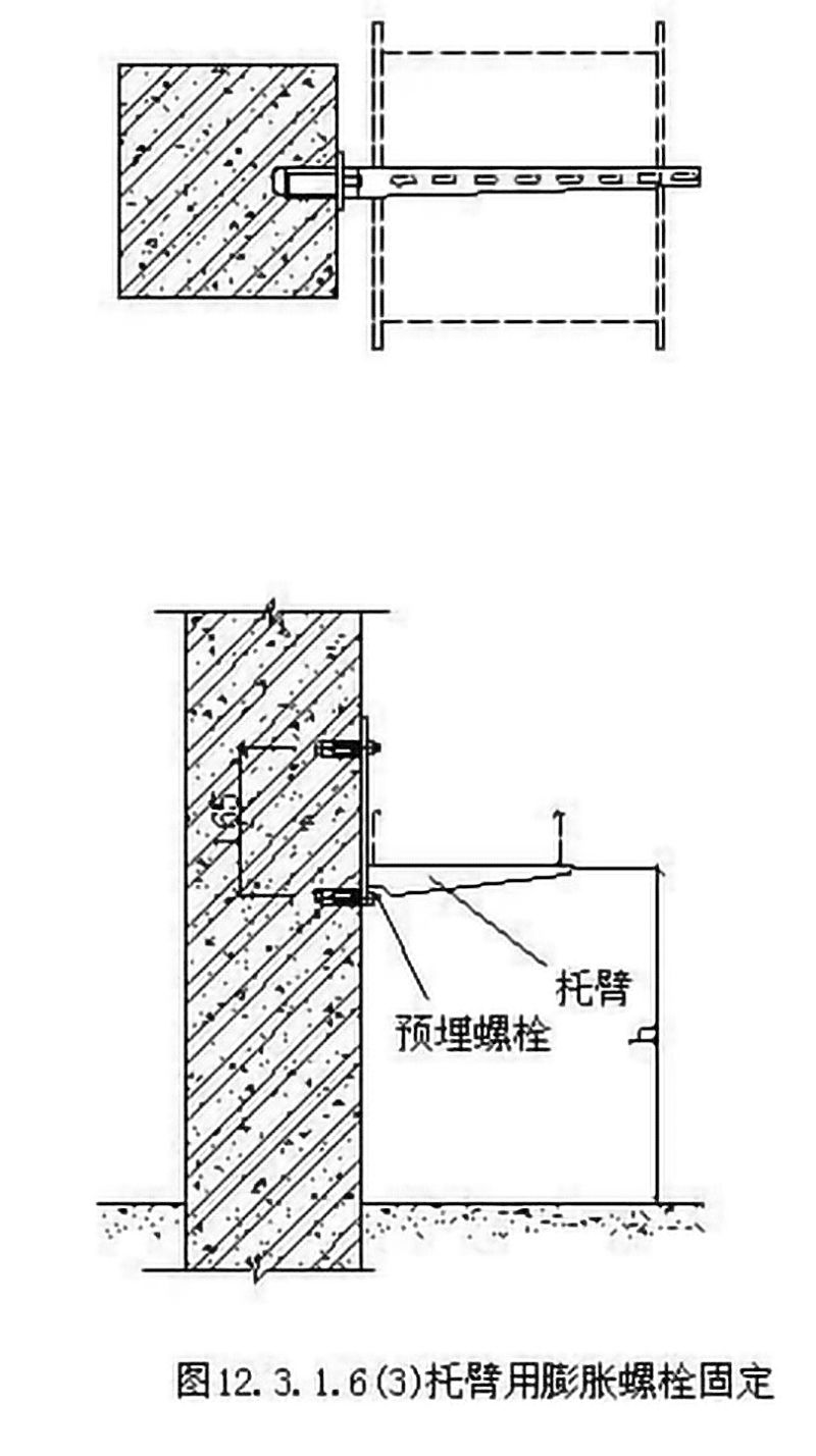
5、托臂安裝:
托臂是直接支承托盤、梯架單獨固定的剛性部件,托臂有螺栓固定可預埋螺栓,也可采用膨脹螺栓,也可卡接,如圖12.3.1.6(1)、(2)、(3)、(4)、(5)。





6、橋架安裝
(1)、直線段鋼制電纜橋架長度超過30m,鋁合金或玻璃鋼制電纜橋架長度超過15m應設有伸縮節,跨越伸縮縫處設置補償裝置,可用帶伸縮節的橋架。
(2)、橋架與支架間螺栓、橋架連接板螺栓緊固無遺漏,螺母位于橋架外側,當鋁合金橋架與鋼支架固定時,有相互間絕緣防電化措施腐蝕措施,一般可墊石棉墊。
(3)、敷設在豎井內和穿越不同防火區的橋架,應按設計要求位置,有防火隔離措施,電纜橋架在電氣豎井內敷設可采用角鋼固定,見圖12.3.1.8。

(4)、電纜橋架在穿過防火墻及防火樓板時,應采取防火隔離措施,防止火災沿線路延燃;防火隔離墻、板,應配合土建施工預留洞口,在洞口處預埋好護邊角鋼,施工時根據電纜敷設的層數和根數用L50×50×5角鋼作固定框,同時將固定柜焊在護邊角鋼上;也可以先作好框在土建施工中砌體或澆灌混凝土時安裝在墻、板中。
7、 橋架的接地,當設計允許利用橋架系統構成接地干線回路時,應符合下列要求:
(1)、 金屬電纜橋架及其支架引入或引出的金屬電纜導管必須接地(PE)或接零(PEN)可靠,且必須符合下列規范:
①金屬電纜橋架及其支架全長,與接地(PE)或接零(PEN)干線相連接不小于2處,使整個橋架為一個電氣通路。
②非鍍鋅電纜橋架間連接的兩端跨接銅芯接地線,接地線最小允許截面積不小于4mm2。
③鍍鋅電纜橋架間連接板的兩端可不跨接接地線,但連接板兩端不少于2個有防松螺帽或防松墊圈的連接固定螺栓。
(2)、 盤、梯架端部之間連接電阻不應大于0.00033Ω并應用等電位聯結測試儀(導通儀)或微Ω表測試,測試應在連接點的兩側進行,對整個橋架全長的兩端連接電阻不應大于0.5Ω或由設計決定,否則應增加接地點,以滿足要求。接地孔應消除涂層,與涂層接觸的螺栓有一側的平墊應使用帶爪的專用接地墊圈。
(3)、 伸縮縫或軟連接處需采用編織銅線連接。沿橋架全長另敷設接地干線時,每段(包括非直線段)托盤、梯架應至小有一點與接地干線可靠連接;在接地部位的連接處應裝置彈簧墊圈,以免松動。